For a long time the towered edifices have been viewed as emblematic of the Río Bec region (Andrews and Gendrop Reference Andrews and Gendrop1991; Gendrop Reference Gendrop1983:45–72), although Carrasco Vargas (Reference Carrasco Vargas1993), among others, observed that buildings with towers are also present in the nearby Chenes region. For him, that fact only serves to strengthen the hypothesis advanced by Potter (Reference Potter1977) regarding the existence of a unique central Yucatan peninsula stylistic province encompassing both the Chenes and Río Bec regions. In the 10 × 10 km micro-region covered by our recent research project (2002–2010) on the eponymous site of Río Bec alone, 10 structures of the 73 recorded groups with monumental architecture pertain to this category (Figure 1). We know now, after seven seasons of fieldwork, that buildings with towers, in the same way as those with zoomorphic doorways, are not constituent of the style Río Bec which develops during Late and Terminal Classic periods. The construction of towers indeed appears late during the Late Classic and in many cases is a secondary operation which affected extant buildings that had existed, up until then, without towers (Nondédéo and Dzul Reference Nondédéo, Dzul, Castillo and Pacheco2010; Nondédéo and Patrois Reference Nondédéo, Patrois, Monod-Becquelin, Breton and Ruz2010; Taladoire et al. 2013). The emergence of buildings with towers within Río Bec society and their importance at the end of the Classic period is at the heart of these pages, which are dedicated to one of the most representative examples of this type of buildings.

Figure 1. In the 10 × 10 km survey region and its border, no fewer than 10 structures with two towers were recorded. Map by Philippe Nondédéo.
While at the beginning of our investigation—which dealt first with the reconstruction of local sociopolitical organization—it was reasonable to wonder whether these exceptional buildings had not played a specific role in this respect (but their status was only hypothetical), precise data concerning their dating, construction history, and functions were actually not available. Only meticulous excavations combined with strict recording could possibly supply this sort of information, and this was exactly the kind of study we decided to apply to the Río Bec Group A, or Structure 5N2 in the nomenclature drawn up from the survey and registration grid of the 159 ha we named the “nuclear zone” of Río Bec (Figure 1).
Admittedly, at Río Bec itself (and only 600 m away from Structure 5N2), the work done by Thomas in 1976 (Thomas and Campbell Reference Thomas and Campbell2008; see also Freer Reference Freer2006) and later by the team led by Carrasco Vargas (Carrasco Vargas et al. Reference Carrasco Vargas, Boucher and Castillo1986; Peña Castillo Reference Peña Castillo1998) provided a substantial quantity of data on another famous towered building; Group B, or Structure 6N1. On the one hand, this information had remained unpublished to a great extent but, on the other hand, Structure 6N1, in fact more modest than Structure 5N2, appears to have formed, along with other neighboring structures (6N2 especially), a residential cluster including multiple buildings. For its part, Structure 5N2 seems to stand alone, which provides a major reason for taking an interest in it. Its relative isolation had already intrigued Périgny (Reference Périgny1909a) during his visit more than a century ago. Apart from a small mound (Structure 5N3) about which nothing is known, and Structure 5N2bis, which on being thoroughly excavated proved to be the kitchen associated with Structure 5N2 located only 15 m away (Figure 2), the closest buildings to Structure 5N2 are, respectively, 63 m and 57 m distant: Structure 5N4 to the southeast and Structure 5N9 to the north, neither of them sharing any edifice or even common space with Structure 5N2. A second reason for excavating Structure 5N2 arises from the fact that the building not only had two towers at the east and west ends of its north façade, but also a third elevated architectural element in the center of its southern façade. Before the excavation, this element seemed likely to be a third tower, following the pattern of Xpuhil Group I, Structure 1 (Proskouriakoff Reference Proskouriakoff1969:Figure 13). Now, edifices in the region with more than two towers are sufficiently rare to merit particular attention. Finally, a comparison between Structure 5N2 and the architectural complex organized around Structure 6N1 could be very instructive and this was an additional reason for our interest in studying the structure (Arnauld et al. Reference Arnauld, Michelet and Nondédéo2013).

Figure 2. Structure A (5N2) in its natural and cultural context (topography and local settlement pattern). A large bajo stretches to the south and east isolating the sector, at least during part of the rainy season, from the rest of the nuclear zone where the towered Structure B (6N1) is found. The number assigned to each structure is prefixed by the 5N label of the 500 × 500 m quadrant where they are located. Contoured lines with arrows represent differences in elevation (possibly artificial terraces), and straight lines (also with arrows) represent terraces. Map by Dominique Michelet and Boris Vannière.
In this paper, we first summarize the work carried out on Structure 5N2 and the main general results obtained. The history of the construction, as we reconstructed it, revealed two quite different stages. In a first phase, which lasted at least a century (a.d. 720–830), the building was limited to two rooms. Its late enlargement or, rather, complete transformation into a two-towered palace building spread out over three to four generations, without the builders succeeding in completing their work, notably on the north (public) side of the edifice. Actually, if Structure 5N2 was fundamentally a residential building, which however included a surprising strictly private ceremonial construction (a pyramid-temple), it was clearly intended to receive and/or impress outsiders, and, in this way, to show the power of the social group living there. Beyond the strict history of the building and the determination of its functions, the study tried to investigate the social background behind such an architectural achievement. How a large and elaborate building such as Structure 5N2 was built and furnished from a rather simple residence? This question is particularly puzzling considering that political and economic power in the surveyed area at its apogee was simultaneously constrained and stimulated by a “house society” scheme of social organization: “constrained,” as the construction of palaces was likely to have been a decentralized activity occurring at a local level, that of the social group or House, which in this case seems to have implied a very reduced workforce; but also “stimulated,” because the House ambitions tended to foster such extraordinary endeavors consisting in building prestigious, “durable houses” (Beck Reference Beck2007). The issue is then one of a contradiction that the social groups tried to solve technically, applying specific construction methods and architectural concepts that enabled them to combine all needs, but finally without complete success as the building remained unfinished. The study of the construction sequence and the social context where building activities took place, together with a series of comments on the structure's particularities, allow us to conclude that Structure 5N2 is a characteristic edifice of the Río Bec region, even if a series of peculiar traits also distinguishes it from contemporary structures.
ANTECEDENTS, EXCAVATION AND GENERAL RESULTS
Group A (Structure 5N2) at Río Bec is the first ancient building in the sector to be seen, reported on, and sketched by early explorers (Sapper Reference Sapper1895a, Reference Sapper1895b, Reference Sapper1897; see also the comments of Hanns Prem in Maler Reference Maler, Prem and Americana1997). What Sapper published concerning Río Bec, particularly a drawing of what is indisputably the famous Group A (Sapper Reference Sapper1897:360, Figure 1), is designated by him as “Ixtinta,” while the name “Río Bec” appears in the German geographer's camp diary (Hanns Prem, personal communication 2007). According to Prem, the first person to explicitly use the name Río Bec was Maler (Reference Maler, Prem and Americana1997), although he did not visit the site. Somewhat later (1906–1907; see Taladoire [Reference Taladoire1995]) the French explorer Maurice de Périgny observed Group A during his third expedition, but he was neither the discoverer of this structure nor the inventor of the designation of the place as “Río Bec” (contrary to Michelet et al. Reference Michelet, Nondédéo and Arnauld2005). In any case, Périgny's (Reference Périgny1908, Reference Périgny1909a, Reference Périgny1909b) publications were the ones that first drew the attention of scientific circles to this region, which had the immediate effect of organizing in greater depth a regional reconnaissance led by Merwin (Reference Merwin1913). Périgny was also the first to notice Group A's unique architecture and even to identify its nature, though this was never fully recognized. He freed the building from its vegetation, photographed it, and published a few prints, remarking in particular on the north side the two towers with cut-stone facings and moldings with rounded corners, an element he pointed out as having no other examples recorded at that time in Peten or Yucatan. This did not prevent him from treating the monument as “a striking proof of the high culture of the ancient Mayas [and of] the diversity of their architectural knowledge” (Périgny Reference Périgny1908:75–77). Périgny (Reference Périgny1909a:476) also qualified the structure as a “vast and solid residence for the lord and his court” and was astonished to have found no “temple,” nor “pyramid” nearby. Río Bec Goup A was then lost, as was Group B, the other two-towered structure discovered by Merwin, and taken as even more characteristic of the Río Bec architectural style, but considered by him to be a “temple.” Rediscovered in the 1980s, Group A was not investigated until 2003–2004, probably due to its considerable dimensions and quite ruined appearance. As a consequence, the only available information before our excavations were sketches based solely on the elements visible on the surface, which are far from perfect, even when made recently (see, for example, Andrews Reference Andrews and Andrews1999:123, Figure A57).
The edifice, as it appeared at the start of the project (Figure 3a), did not seem to have degraded since Périgny's visit nearly a century before. Overall, it had the appearance of a large mound extending west-east. The two towers, one located at either end of its north façade, the tops of a few walls, and the remains of vaults in several of the rooms were still, for the most part, visible. Excavations in the first season (2004) unearthed just under half of the north façade of the building proper, its north-east room (coded “Room a”), the base of the northeast tower, the Eastern Patio behind it, and the east side of the Rooms i and j in the southeast wing. During this season, the first precise topographic plan (Figure 3b) already showed that in several respects Sapper's sketch and, above all, Merwin's (Reference Merwin1913:Figure 31) were closer to reality than Andrews'. After four seasons in the field (seven work months later) Structure 5N2 was completely cleared except for the two rooms at the southwest corner (Rooms k-l) and the Western Patio which we deliberately left untouched for eventual future excavations that might apply new techniques. But in principle, the k-l wing rooms may be considered as quite strictly equivalent and symmetric to the i-j wing rooms. A systematic test pit program accompanied the clearing of the edifice, followed by architectural consolidation operations with both structural and visual aims, that is, to stabilize the building and restore its overall appearance, with some restoration sensu stricto of its most fragile parts; its carved architectural decoration in particular (Figures 4a and 4b). Freeing Structure 5N2 thus allowed its morphology to be defined and the final ground plan to be drawn up at the end of the 2008 season, now giving an exact picture (Figure 5).
Figure 3. (a) Pre-excavation view of the north façade of Structure 5N2 (photo courtesy of the Río Bec Project). (b) Preliminary ground plan of the building at the start of the excavation (drawing by Guy Marchand 2004).
Figure 4. Views of Structure A after excavation and consolidation: (a) north façade; (b) south façade with pyramid-temple. Photos courtesy of the Río Bec Project.

Figure 5. Final plan of Structure 5N2, 2008 (topographic field work by Dominique Michelet and José Damián Álvarez; digital processing by Céline Gillot).
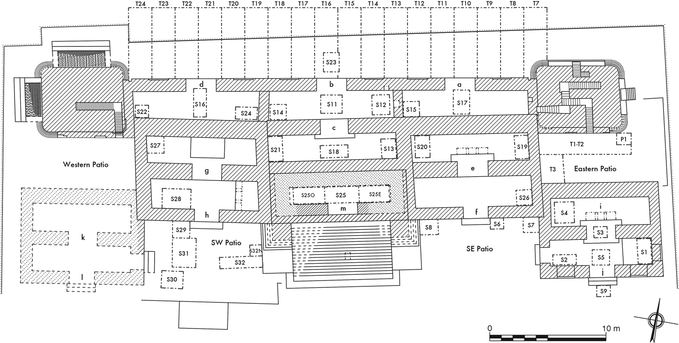
On this plan it appears that Structure 5N2 has 13 rooms in total, and can be broken down into six groups of principal elements forming two strongly contrasting entities: one to the north, long and framed by the towers, the other to the south, segmented and surrounding several patios. The three northern elements are the two towers framing three rooms in a west-east range opening to the north, with the one in the center (Room b) giving access to a fourth (Room c), both being “in tandem.” The three elements to the south are two pairs of tandem rooms (Rooms e-f and g-h) opening to the south and framing an elevated platform with a great frontal stairway (south) giving access to a real superstructure as indicated by the existence of a single, although quite narrow, vaulted room. This arrangement creates a pyramid-temple. Lastly, two wings at the building's southwest and southeast corners each comprise one pair of tandem rooms with main openings to the south. The morphological particularities concerning the sequence of construction are discussed below. For now, two important points relating to the north façade and the temple are worth noting.
From the start, observations on the two towers led us to suspect that the building had not been finished on its north side. Whereas the northwest tower has a false stairway still largely in situ on its west side and enough debris on its north side for another false stairway to have existed there also (confirmed by excavation), on the northeast tower no obvious false stairway had ever been built either on the north or east side. On top of both towers, blocks of masonry—the evidence for false temples—was eventually found only on the west side, consisting of fallen elements included in the tower rubble. This indicates that the northeast tower was never finished. The lack of completion on the north façade has also been confirmed by excavations in the Rooms a, b, c, and d; none of these stone had stone access steps in spite of a difference in height of 80 cm between the basal platform and internal floor level. Furthermore, none of the four rooms (a through d) had a properly polished stucco floor, and in Room c even, the upper salient band, which ought to have formed the plinth of the raised floor, was never installed except on the sides (Figure 6). Lastly, in Room d, construction of a lateral bench on the east side (and possibly another on the west) had certainly been started as shown by some accumulated fill, but never really finished. This incomplete state of the north rooms and the northeast tower contrasts, however, with the north façade wall, which appears to have received its complete decoration (Michelet et al. Reference Michelet, Latsanopoulos and Patrois2004; Straulino et al. Reference Straulino M., Michelet, Patrois, Latsanopoulos, Jaídar and González G2012).
Figure 6. Raised “floor” of Room c without stuccoed surface. Note also the absence of a salient band at the edge of the upper level, except on the small sides. Photo courtesy of the Río Bec Project.
This decoration is made of three fundamental components (Figure 7). First, there is a tripartite basal molding ornamented, in its central part, by groups of three embedded columns framing zones of flat facing, a standard type of decoration found on many structures of quality from the Kanlol (a.d. 550–700) through the Xpuhuk phases (a.d. 850–1000), as well as on some other façades of Structure 5N2 itself. Second, inset panels, each divided into three bands surmounted by a salient molding, frame the three doorways, with bas-reliefs mirroring one another in almost exact symmetry. On both sides of the east and west entrances, the designs of the various bands are identical, while the panels framing the central door oppose the lower band to the two uppers, which differ but are similar. Third, an upper moulding also existed near the level of the roof—that of the central room must have been slightly higher—and decorated with a salient frieze 20 cm high with motifs in bas-relief, stuccoed, then incised and punctated. The great variability in the figures represented in this place and the very uneven level of work on more than 60 stones recovered from the frieze made us judge from the start that the decoration of the north façade of Structure 5N2 may have been late (Michelet et al. Reference Michelet, Latsanopoulos and Patrois2004). Given the details outlined above, it can be supposed that, at least in its final phase, Structure 5N2 reflected a great ambition that happens to have been partly frustrated. Although its north façade was designed to serve public purposes with its towers and rich decoration, certainly intended to impact outsiders and to display its occupants' prestige, it remained unfinished, and, though doubtless useful in some way, Rooms a, b, c, and d never functioned as they had been planned to do.
Figure 7. Simplified reconstruction of the north façade of Structure 5N2. Drawing by Nicolas Latsanopoulos, after field sketches by Dominique Michelet.
On the south side of the building, the archaeological evidence from the six rooms cleared (Rooms i-j, e-f, and g-h) as well as from the adjacent patios, strongly implies that this part was more strictly residential (private) than the north one, with no façade decorations besides basal moldings, and that this sector was actually occupied. From all perfectly polished and complete stucco floors, samples taken every meter in Rooms i-j and e-f were subjected to a chemical analysis (Bortot Reference Bortot2009) whose results indicated very little contamination, which suggests either the absence of polluting activities inside the roofed areas or a short occupation. But, the presence of side benches in Rooms j and h (probably used as beds), cord-holders that allowed a degree of intimacy, and, above all, the assemblages of artefacts found on the floors as well as the occurrence of various middens are fairly unambiguous signs of residential activities in this part of the building. Excavations carried out in Room j revealed the presence of sherds, ashes zones, chert flakes, and grinding stones on its stairs, while in Room f we found a fine green stone axe associated with Fine Orange ceramics. Concentrations of sherds, most of them of Fine Orange groups, and grinding stones were also found on the corners of the Southwest and Southeast Patios. Moreover, a huge quantity of graffiti located on the stucco walls and doorjambs of Rooms i-j, e-f, and g-h, confirm the residential function of this south section. They show a certain diversity of motifs, and the style and complexity of the drawings suggest the existence of various authors leaving in each tandem units from children to adults (see Patrois Reference Patrois2013; Patrois and Nondédéo Reference Patrois, Nondédéo, Vidal and Muñoz2009). Finally, some of the best evidence of occupation came from the southern edge of Southwest Patio where, on both sides of its access, we located two concentrations of abundant material refuse indicating a rather extended occupation. Composed of various superimposed levels of artifacts, these concentrations totaled more than 2,000 sherds for the west one, and 700 for the east one, including utilitarian wares (Traino Brown and Tancachacal Slate), serving vessels (Achote Black and Tinaja Red) and fines paste wares (Altar Orange) mixed with ashes, fine lithic tools or laurel-leaf points, ocarinas, manos, and bark-beaters (Sion Reference Sion2010). Close to this Southwest Patio, a separate kitchen (Structure 5N2bis) had been built for storage and food preparation, as indicated by the numerous artifacts present on the floor: namely jars of different forms and dimensions, tecomates and dishes, along with a mano and metate set. All of which makes it surprising to find a true temple in the centre of this sector.
Truly astonishing about this temple is the very existence of this kind of construction in a Río Bec context, especially when directly associated with a palatial edifice. While pyramid-temples exist in certain sites or monumental groups in the region (including in Group II and Kajtun in the microregion studied by the project), all appear to have been constructed at a relatively early date, and there is scarcely any trace of buildings of this kind after a.d. 700 (Nondédéo Reference Nondédéo2003). In fact, as far as is known at present, no pyramid-temple exists within any Río Bec-type residence, especially an edifice with towers. The multistorey edifices such as Structure XX at Chicanna (Carrasco Vargas Reference Carrasco Vargas1994:Figure 45) cannot be considered to include a pyramid-temple, and the true main pyramid-temple at Becan (Structure IX) was clearly built at the end of the Late Preclassic through the beginning of Early Classic (Campaña Valenzuela Reference Campaña Valenzuela2005). We are left with the fact that Structure 5N2 does recall Structure 1 of Xpuhil Group I, a probably contemporaneous or slightly later building (Bueno Reference Bueno Cano1999). Nonetheless, in the former the third tower is replaced by a building that is not a simulacrum. Although a vertical block, the tall platform embedded in Structure 5N2 is given a pyramidal effect by the great frontal stairway, which is a real stairway counting more than 20 walkable steps that lead to a vaulted temple with a single chamber (Room m) about 1.4 m wide and more than 7.75 m long inside. The temple walls, though poorly preserved, had façades with a tripartite basal molding identical to that on the building's north façade. The temple's poor state of preservation had also affected its floor to such an extent that it was not possible to check for intrusive deposits. An east-west trench reaching 2.6 m in depth was made in the central part of the temple in order to look for burials, so as to check whether the building had a funerary character like many pyramid-temples. No evidence of any intrusive funerary deposit was found, which does not preclude an internment made at the base of the tall platform when it was built. In turn, the trench beneath the temple floor revealed a series of seven censers and pockets of charcoal ash, probable remains of some grand ritual having consecrated the temple (Michelet et al. Reference Michelet, Nondédéo, Pereira, Patrois, Arnauld, Lacadena, Ruiz and Cuerva2010, Reference Michelet, Nondédéo and Patrois2011). Owing to its location within a residential sector, that it faces a stone quarry instead of a public space (Figure 2), its vertical substructure, and its probable non-funerary character, the temple inserted in Structure 5N2 would seem at first sight to have little to do with the traditional pyramid-temples ubiquitous at Late Classic Maya centers. As an edifice with a specific part planned for private rituals inside an essentially residential complex, Structure 5N2 seems quite representative of the Río Bec province where, with the exception of Becan, few architectural elements are witness to a social, political, and ceremonial organization of collective dimensions beyond the level of a local coresident social group (Arnauld and Michelet Reference Arnauld, Michelet, Monod-Becquelin, Breton and Ruz2010).
After clearing the various parts of Structure 5N2, a major program was developed for excavating inside the many rooms and in the external areas (Figure 8), which consisted of 31 test pits, in addition to complete exposure of the patios (except the Western Patio) and excavation of middens located south of the Southwest Patio. The main objective of this work was to collect ceramic material in order to date building and occupation stages, as well as detect evidence for eventual distinct episodes of construction. Besides these aspects (see below), the test pits helped to understand the constructive process and techniques (see Gillot Reference Gillot2014). For present purposes, the latter can be summarized in two points. First, the pits revealed the importance of the walls' foundation system: under each load-bearing wall there are wider foundation walls often reaching down to the bedrock, undoubtedly a determining element in the preservation of buildings. Second, it proved that fill under floors and above paleosols were very carefully laid down in thick layers alternating small- and medium-sized stones with little sediment, leveled with layers of limestone sand (sascab).

Figure 8. Test pits and excavations in Structure 5N2 and in the building's external areas.
Lithic and ceramic materials were abundant in some of the layers. Especially when concentrated and numerous, the sherds seem to have represented basket loads of earlier ceramics brought from some nearby dwelling contexts and laid down in fill, as if to imbue the new building with some historical continuity. As an example of this practice, in test pit S8 dug at the northwest corner of the Southeast Patio beneath the well-preserved patio stucco floor, a total of 46 sherds recovered from the exceptionally thin fill included 14 Sierra Group sherds (of which 10 are possibly from one bowl) and were apparently deposited intentionally, even if they were refuse material. As for the lithic material in the Structure 5N2 fill, though made up of chert blocks and large flakes, it still includes somewhat more bifaces and picks than the fill from the other excavated structures (1.2% versus .7%, respectively) (Chloé Andrieu, personal communication 2009). This could tentatively be explained by the fact that overall the Structure 5N2 fills contained more of the tools used to construct the building than elsewhere. One example is given by two picks to work stucco found where the workmen seem to have dropped them at the foot of the north façade, in between the embedded columns of the tripartite basal molding at the east end. In reality, this discovery well illustrates the fact that the building must have been abandoned when scarcely completed or even during work on the north façade. An additional point that should be mentioned concerning the construction processes is the discovery—in pits dug at the west end of Room i and at the east end of Room c—of jars that undoubtedly formed foundation deposits: in the former, the lower half of a Pixtun Trickle-on-Gray: Pixtun variety jar and, in the latter, a complete Encanto Striated: Pepino variety tall jar (about 60 cm high, 58 cm maximal width) with a large fragment from the base of a Pixtun Trickle-on-gray: Pixtun variety jar as a lid.
A HISTORY OF THE CONSTRUCTION AND OCCUPATION OF STRUCTURE 5N2
In Structure 5N2, the state of the rooms and the examination of the wall junctions provided the first evidence for the building's sequence of construction. The stratigraphic test pits brought to light some important structural data and yielded ceramic finds that dated the floors, that is, the latest sherds included in the fill offered the base line for dating the latest operations in the construction of the rooms. The history of Structure 5N2 revealed by those diverse data sets includes thus two major episodes, with the second one subdivided into several stages.
Episode 1
Structure 5N2 initially consisted of only two rooms (Rooms g-h) facing a small exterior built space to the south, the Southwest Patio (Figures 9 and 11b). Based on ceramic material retrieved from pits S27 and S28, in particular, which featured perfectly sealed stratigraphy under the unique interior stucco floor of Rooms g and h, the construction of this first building is assigned to the Kanlol-Makan phase transition dating to approximately a.d. 700–720 (Taladoire et al. Reference Taladoire, Dzul, Nondédéo and Forné2013). That this part of the structure might be the earliest of Structure 5N2 had been surmised by the observation that division walls between Rooms b/d and Rooms b/c appear to lean against the outer corner of Rooms g-h, built with cornerstones and initially decorated with medial molding, still perceptible afterward in Room c (Figure 10). This first impression was then confirmed by excavations of three pits (S16, S22, and S24) (see Figure 8), in which we discovered that the base of the south wall of Room d—initially external wall of Room g—has facings sunk below the surface level of Room d and even resting on a basal molding of faced, and still stuccoed, stones (Figure 9, S-N section). This arrangement clearly shows the wall must once have been a visible external façade wall. The last pieces of evidence that the g-h tandem rooms formed a separate unit are the orientation of their walls, which are different by some degrees from the rest of Structure 5N2 (Figure 5).

Figure 9. Rooms g-h, the first building constructed within Structure 5N2: (a) ground plan; (b) north-south section incorporating Room d. At the bottom of the profiles, areas filled with hatched lines represent the bedrock (field sketches by Philippe Nondédéo and Dominique Michelet; digital processing by Philippe Nondédéo).
Figure 10. Northwest portion of the final Structure 5N2 building. In the foreground, the worker is on the division wall between Rooms b and c, which leans on the northeast corner of Room g. Photo courtesy of the Río Bec Project.
Figure 11. The various building stages of Structure 5N2: (a) axonometric view (note that the number “1” is the first building stage); (b) 3D reconstruction. Drawings by Nicolas Latsanopoulos, after field sketches by Dominique Michelet.
For the following 100 to 150 years, at the most (that is to say, four to six generations), the initial building was in use with only two rooms: g and h, which had been built on a former quarry or sascabera that was in use during the Kanlol 1 phase (a.d. 550–625) (Figure 9, S-N section). In the absence of any evidence of modification, it may be supposed that the rooms in their original form—with their vaults definitely lower than the later rooms of the north façade (Rooms a, b, and d), as well as their interior fitting features—all date from the first phase of construction and were maintained throughout the occupation of Structure 5N2. Although the side bench in Room h is a fairly common piece of furniture for residences in the region, the bench directly in front of the doorway at the back of Room g is unusual in its form and dimensions (3 × 1.9 × .75 m), as well as in its position and lack of sidewalls. This morphology designates it as a (ceremonial) seat and not as a sleeping couch. With its red-painted floor it constitutes the very center of the structure's reception system. Benches with very similar forms have been found in the rear central rooms 21 and 22 of Becan Structure I (Campaña Valenzuela Reference Campaña Valenzuela2005:53).
Near this seat, censer fragments, as well as traces of ashes and burning found on it and its west foot (among other occurrences in Rooms g-h), might indicate the bench was used as an altar. This hypothesis cannot be ruled out, but in any case would only concern the last moments of occupation at Structure 5N2 at roughly a.d. 950; the traces detected seem too dispersed and numerous for the remains of a unique termination ritual, but neither does the rites' probable extension over time imply they occurred throughout the second phase of the edifice's occupation. Burial 16, discovered in the east part of Room g, must also date from the last occupation period (beginning with the Xpuhuk 1 phase from a.d. 850). As an intrusive burial, it belongs to the category of “occupation burials” (versus “transition burials,” see Pereira [Reference Pereira2013]). It is also the only burial recorded for the whole building—a form of negative evidence indicating that most of the dead were buried outside their residential structure and immediate surroundings.
In its original version, built at approximately a.d. 700–720 (Rooms g-h), Structure 5N2 seems thus to have formed the residence of a nuclear family. The vaults, the masonry quality, in particular the thickness of the median wall, the veneer stones on the main façade, and the ceremonial seat all suggest a certain social status and, perhaps, above-average economic means. Until the beginning of the following construction episode, dating at the earliest to a.d. 830–850, the house (Rooms g-h) seems to have continued to be used in the same way, its occupants possibly having the use of the kitchen Structure 5N2bis located close by (Figure 2), if not from the very beginning, at least not very much later (Sion Reference Sion2010). In addition to their residential and reception functions, the old Rooms g-h would have acquired a ritual role either shortly before the general abandonment of Structure 5N2 or from the beginning of its transformation into a monumental palace. In reality, it is hardly surprising to find, at one moment or another, the founders' residence used as a sanctuary dedicated to their worship, even if their remains did not rest on the spot. The conversion of an initial residence into a family shrine is right at the heart of the reconstruction of the history of Group 2G-1 at Tikal, for example (Haviland Reference Haviland, Wilk and Ashmore1988).
Episode 2
As discussed above, this episode began at approximately a.d. 830–850. It included several stages, but was still incomplete at the moment the structure was abandoned just around a.d. 950. In the rooms with perfectly intact floors corresponding to the second episode (Rooms e-f and i-j), the most recent sherds contained in the deep fill layers constitute a terminus post quem for dating the construction activity, and these sherds (Pixtun Trickle-on-gray: Pixtun variety, Traino Brown: Lodo variety, Tancachacal Slate: Tancachacal variety, Torro Gouged-Incised: Torro variety) are representative of the very beginning of the Xpuhuk 1 phase (a.d. 850–900) (Taladoire et al. Reference Taladoire, Dzul, Nondédéo and Forné2013). So, the second episode in the building's history would have lasted for at least 50, or at the most 100, years spread over two to four generations. Before being finally deserted, the entire south part of the edifice was finished and lived in (including the unexcavated Rooms k-l). In the same way the northwest tower may have been finished, unlike Rooms a to d, which were left unfinished.
The order in which the various components of the great palace Structure 5N2 were built can be deduced, above all, from the ways the walls connect one another and by room orientations (Figure 11a and 11b). The first stage of addition-expansion began with Rooms e-f and the partial backing of the tall platform against the latter and Rooms g-h. We suppose that the temple crowning it was also built at that time. That the platform and its temple were contemporaneous is most notably confirmed by the existence of foundations for the temple's walls sunk very deeply into the fill of the platform behind the frontal stairway. The first phase of episode 2 thus consisted of two pairs of tandem rooms separated by the pyramid-temple. This is an architectural arrangement also known in the Chenes region (at Dzibilnocac Structure A-1 among others, see Gendrop [1983:Figure 156a]).
The southeast wing (Rooms i-j) backed onto Rooms e-f, as was probably the case for Rooms k-l, in relation to Rooms g-h. Yet, although these were completed rooms that were occupied, their addition in episode 2 must be placed at the end of the construction process, after the building of the north components of the edifice, which nevertheless were never completed. The principal argument for the construction of Rooms i-j and Rooms k-l taking place at the end of the expansion process can be outlined as follows: If one closely examines the rear (south) façades of the two towers, it appears de facto that the builders initially planned to lean perpendicular rooms against these parts of the structure (a spatial arrangement well documented in the Río Bec region: see Structure 6N1, Groups N and R, and Porvenir Structure 2, among others). This is demonstrated by the presence of segments of walls left unfaced in anticipation of additional abutting walls, as it is the case with 7N1 (Group D) (Figures 11b and 12). For one reason or another, the initial project was abandoned and the tandem rooms of both south wings were built. It seems quite clear that the completion of the north part of Structure 5N2 was so delayed that it never took place, even though additions of a residential nature, not planned for at first, had been made. Just before its abandonment, apart from the functionally unfinished north rooms and certainly for a fairly short time, Structure 5N2 was a building with eight residential rooms (four pairs of tandem rooms) arranged around a central pyramid-temple forming a sort of second story. The whole structure represents an original disposition, considering, above all, the fact that the temple was also functional. Structure 1 of the Manos Rojas Group C (Andrews Reference Andrews and Andrews1999:118, Figure A47) is composed of two pairs of rooms in tandem, leaning against what has so far been interpreted as a tower-like block of masonry rather than a pyramid-temple.
Figure 12. South (rear) side of the northwest tower of Structure 5N2 where unfaced parts of wall are visible. These were surely intended to receive perpendicular walls, which were never actually built. Photo courtesy of the Río Bec Project.
It is now confirmed that the vaulted tandem rooms, present in Structure 5N2 from the beginning and then multiplied as the building expanded, correspond to a living module frequently adopted by the upper fraction of the local society. It has been suggested that each pair of rooms lodged one nuclear family or perhaps, in the case of polygyny, each of the wives of the same (important) personage with their own children (see Arnauld et al. Reference Arnauld, Michelet and Nondédéo2013). Two further points should be noted. First, the two southern lateral wings are attached to the corners of the main structure (which is quite rare) thus manifesting a certain independence of their inhabitants. Second, each wing, respectively, has direct access to the Southeast and Southwest Patios, providing evidence, at the same time, for the integration of the wings' occupants to the social group living in central Rooms g-h and e-f. Significant quantities of artifacts were found, for instance, on the stairs of k-l leading to the Southwest Patio.
The element not yet discussed with regard to the completion of the major project to expand Structure 5N2 is the construction of the north façade. This operation at the north of the building can be subdivided into three phases, probably technical rather than chronological. But it had been designed as a whole from the start, though blemished by a conspicuous error, which it is opportune to mention here.
Because it seems to have been the only component ever fully completed, the northwest tower must have been built first. As an additional argument, the Room d facing leans against the tower's northeast rounded corner, and the basal platform for the whole north façade had certainly been constructed before and was retained by a front wall surfaced with cut stone. When work on the false north stairway of the northwest tower began, Maya builders discovered that this platform was not wide enough and had to enlarge it at this point with a new platform (Figure 13). There is also evidence for platform expansion in Structure 6N1 (Group B) where the two towers were added to the original building. But this is rather different as it concerns the whole basal platform. Another detail is worth noting about this tower's false stairs, as the implications involved are highly suggestive. This tower and those of Structure 6N1 (Group B) can be compared in their general geometry. But certain similarities are closer still: steps and balustrades are strictly identical in design and dimensions, suggesting that the builders of the Structure 5N2 tower must have copied the towers of Structure 6N1, built slightly earlier, or even that the same craftsmen were involved. In fact, the stones forming the steps of the Structure 6N1 towers were certainly still covered with stucco when that of Structure 5N2 was built, and the fact that every step of Structure 5N2 (only 17 cm high) is made of three thin slabs, one on top of the other, exactly as in Structure 6N1, would have been unlikely without intimate knowledge of the model.
Figure 13. North and principal side of the northwest tower. Note the new basal platform added in front of the false stairway. Photo courtesy of the Río Bec Project.
East of the northwest tower, the construction of Rooms c, d, b, and a (probably in that order) and the facing of them, technically even if not chronologically, preceded that of the northeast tower; for here the latter's northwest rounded corner leans against the façade of Room a. Technically again, we recognize that the façade rooms (d, b, and a) initially had the form of a single large gallery (longer than 34 m in total), the subdivision walls having been subsequently added. So it is likely that a single vault covered the three-façade rooms. But in the portion corresponding to the middle one (Room b), we assume the upper part of the exterior façade was a slightly higher than above the side rooms (a and d). This is the only possible explanation for the presence, on either side of this central portion, of fallen cornices, sculptured on two perpendicular faces. These are corner cornices, which would have delimited a central raised part of the upper frieze (Figure 7).
In spite of the incompletion of the north part of the edifice, even if some features of the decoration of the façade may appear decadent (Michelet et al. Reference Michelet, Latsanopoulos and Patrois2004), and despite the calculation error about the basal platform in front of the northwest tower (see above), those who designed and built all this section of the building had by no means lost their architectural expertise. Good evidence of this is provided by the fact that the horizontal moldings of the two towers are nearly perfectly leveled, though located more than 34 m apart.
This multistage construction sequence, protracted (from a.d. 700 to 950 at the latest) and incomplete, is one of the characteristics of Structure 5N2 that makes it a paradigmatic edifice in Río Bec. The excavation and survey data for other buildings, especially late in time, indicate that some large houses were designed and planned as a whole, but gradually constructed over several generations, stage-by-stage, wall-by-wall. First, an excavated structure, 7N1 (Group D), has evidence for a vaster initial plan, in the form of foundations sunk into the fill for walls never built, as well as unfaced segments of façade which had been prepared for adding perpendicular walls. Second, construction details that differ from one part to another of the same edifice suggest either that building was undertaken by distinct teams or the various parts were built at different times. Third, some of the principal edifices in Groups appear incomplete: for example tripartite plans missing a wing as in the case of Group E Structure 1. In all these groups of monumental residences, perhaps the mere fact of displaying a project in progress was a source of prestige or power for their inhabitants. Another possible explanation for the “incomplete aspect” of various buildings could simply be the abandonment of original projects, as is demonstrated for Structure 5N2. We must recall here that there was much emulation between social groups and powerful families, and that new “modes” or trends in architecture and iconography were rapidly adopted and diffused among the Rio Bec groups, implying perpetual changes and adaptation of the original designs. An example of this reactivity in Rio Bec society would be the quick adoption and diffusion of zoomorphic doorways and the towers.
Returning to Structure 5N2's second building episode from a.d. 830 to 850, the term “expansion” in fact minimizes the radical transformation that the initial structure underwent. Here the construction of an entirely new edifice had little to do with the initial structure. Without considering the pyramid-temple or the two towers, and without trying to make a real energy calculation for the construction (by applying, for example, Abrams' [Reference Abrams1994] parameters), a simple count of the rooms results in a one to six growth ratio. Obviously, this architectural “revolution” begs certain questions, so we turn now to look at the economic and social dimensions that gave rise to it.
BEYOND THE BUILDING: ECONOMY AND SOCIETY
As suggested above, if each pair of rooms in tandem was used to lodge a nuclear family, the occupants of Structure 5N2 would have increased in number from one to four basic family units. This does not include the incomplete north façade rooms that are considered to have been uninhabited, though they may have been used for some other purpose. As already noted, given the dramatic impact of their respective doorways, these rooms must have had an important public role, but the possibility they had been planned also as dwelling quarters cannot be ruled out, as the incomplete side benches in Room d show. The history of Structure 5N2's construction thus appears to indicate a four-fold increase (and even more with the north rooms) in the number of occupants over a little more than a century, between a.d. 830 and 950. This is hardly compatible with the natural growth of the founding family unit. The earliest occupants, housed in Rooms g-h, would have stayed unchanged for four to six generations. Requiring a considerable labor force probably recruited from outside the resident family, the spectacular transformation and the creation of a spacious palace are not easy to explain. Little data are available besides an examination of the residential network in the structure's vicinity.
As mentioned above and as can be seen in Figure 2, Structure 5N2 is relatively isolated, like other equally late buildings—for example, Structure 6M61, also called Group Q. The higher zone on which Structure 5N2 is located is bordered to the south and east by an uninhabited bajo (though its banks may have been cultivated), as well as by several terraces on the adjacent slopes (Lemonnier and Vannière Reference Lemonnier and Vannière2013). The nearest structure, the entirely excavated Structure 5N2bis, is a kitchen built from the first occupation episode of Structure 5N2 and apparently used up until abandonment. Nothing, however, is known of Structure 5N3, a mound of similar size located next to Structure 5N2bis.
Located southeast of the palace, a distinct unit formed by Structures 5N4 and 5N5 has been completely and meticulously excavated (Gillot Reference Gillot and Michelet2009). The Structure 5N4 building is a residence initially comprising two vaulted tandem rooms smaller than Rooms g-h; it opens to the south, facing away from Structure 5N2. Its inhabitants probably had an original socioeconomic level slightly lower than the inhabitants of Rooms g-h. Just like these rooms, house Structure 5N4 was built at the very beginning of the Makan phase, about a.d. 700. Although subsequently and substantially modified several times, it was only occupied in the Makan 1 phase and not much later than a.d. 790. This Structure 5N4 was thus abandoned shortly before the launching of the great building stage that totally transformed Structure 5N2. But the abandonment was accompanied or followed by rituals done in situ (notably the covering of a funeral pit previously sealed by the repair of the stucco floor, by a series of paving stones, to protect better the remains of the individual buried here). This fits the hypothesis that the occupants of Structure 5N4 may have formed one of the new nuclear families that came to live in Structure 5N2, while maintaining a relationship with Structure 5N4 (their initial dwelling), at least as far as symbolical and ritual practices are concerned. As for neighboring Structure 5N5, it consists of two adjacent rooms aligned east-west and opening north towards Structure 5N4, but a part of its walls and the whole roof were made of perishable materials. From construction to abandonment, it lasted about two centuries (a.d. 700–900). Accordingly, Structure 5N5 survived Structure 5N4, perhaps as a storehouse considering the quantity of fairly late jar sherds found on the floors, mainly in its west room. It was possibly used beyond a.d. 790 under the control of the inhabitants of Structure 5N2. Roughly coeval with Structure 5N2 in the first episode of its existence, the residential unit 5N5-5N4 must have played a role in constructing the extension of the former, and must have been absorbed in the new social grouping formed at the time.
North of Structure 5N2 (Figure 2) is found what was long referred to as “Group G,” which has a main structure similar to Rooms g-h (5N15, two vaulted rooms in tandem) and other buildings a bit closer to Structure 5N2, among which Structure 5N9 seems the most relevant. A distance analysis of these dozen or more structures has led to three household units being distinguished: the first around Structure 5N9, the second around Structure 5N15, and the third around Structure 5N21. The stratigraphic trench excavated in front of Structure 5N9 indicates this edifice was built in the Makan 1 phase (post-a.d. 700), and still occupied at the start of the major work that remodeled Structure 5N2. It does, however, seem to have been abandoned during the terminal phase. Thus, the occupants of Structure 5N9 could have formed another family cell integrated into Structure 5N2. In front of the door of Structure 5N15, a test pit revealed building episodes just prior to the great Structure 5N2 construction project. Based on the material found in this pit, as well as in others excavated nearby, it appears that the main period of occupation of the Structure 5N15 unit was contemporaneous with the second version of Structure 5N2, and this household was in no case abandoned for the palace, the end of occupation seeming more or less to coincide for both households. We are then left with the ultimate question: since Structure 5N2's expansion was not linked to a transfer of people from this local Structure 5N15 unit, to what extent did its inhabitants cooperate in the construction of Structure 5N2, or were they in competition? No evidence currently exists to clarify the issue, except for the agrarian context (see Lemonnier and Vannière Reference Lemonnier and Vannière2013)—the model of agricultural production units assigns Structure 5N2 and Group G together, a large network of terraces over 3.5 ha in area without any visible partition feature, so that a unique “domain” could have been shared among the four local household units. Interestingly, this case seems similar to that of Group B, which is assigned a domain of 4.5 ha, apparently shared by four household units as well. In both cases, economic cooperation in the production unit (building terraces) would not have resulted in social absorption uniting all people living under one roof. One point is clear: the work invested in the Structure 5N2 palace likely asserted the socioeconomic superiority of its occupants over the inhabitants of Group G. It can be added that in Burial 16, found in Room g and dating to the last period of occupation, the individual had, amongst a small number of grave goods, fragments of cacao tree charcoals (Dussol Reference Dussol2012), perhaps evidence of for an economic capacity to acquire valuable goods. On the other hand, the likely competitive climate in which the final palace Structure 5N2 was built went well beyond the limits of its immediate spatial context, as discussed above. The copying of Structure 6N1's towers by the builders of Structure 5N2, who had chosen to build on a much larger scale, could actually be the sign of both emulation and cooperation (as far as the inhabitants of Structure 6N1 would have allowed those of Structure 5N2 to copy them) between the families of these two dominant units.
If the process of demographic growth in Structure 5N2 is partially explained by the absorption of families formerly living in neighboring autonomous residences (5N4, 5N9), it falls short of explaining the mobilization of human and material resources necessary for the final building of Structure 5N2, even though this project may have lasted several decades. In fact, the incomplete nature of Structure 5N2 may well indicate that its residents/builders did not have the necessary socioeconomic resources and/or workforce to finish what they had started. The presence of neighboring Group G, just when Structure 5N2 was making its bid to develop, might also explain the extension project's unfinished nature; the power Structure 5N2 claimed architecturally was unable to assert itself materially. In some way, the success of the Group A social unit could not be completely achieved, that is, by lodging all local families within Structure 5N2. In other words, the Structure 5N2 social group did not supersede an intermediate, “nouveau-riche” status, obtained from an originally modest social standing.
CONCLUSION
With its morphological and decorative peculiarities and its place in the local residential network of the Late-Terminal Classic, Río Bec Structure 5N2 (“Group A”) is a paradigmatic Río Bec palace in certain respects, and original in others. But the fact that each of the major buildings is original and differs from the others is what precisely characterizes the entire Río Bec region.
The general form of the final palace such as it was imagined and almost completely constructed would have made it an almost “typical tower complex” (Andrews Reference Andrews and Andrews1999; Andrews and Gendrop Reference Andrews and Gendrop1991). Morphologically, the principal divergence is the presence of a pyramid-temple. Whether this architectural component had a funerary character or not may well be less important than was thought when it was discovered. In the Río Bec regional apogee—meaning when its cultural independence in relation to the Maya Lowlands was at its height (Nondédéo et al. Reference Nondédéo, Patrois, Lacadena, Arnauld, Taladoire and Michelet2010)—the construction of a true pyramid-temple may seem surprising as it is more evocative of the rest of the Classic Maya world than the Río Bec region itself, where no such structure was built. But the position of this element in the center of a private façade and, consequently, its lack of supra-kin, community value gives this pyramid-temple a sociological meaning that does not fit with the general Maya template and confirms Río Bec's sociopolitical particularism. A private ceremonial facility for the inhabitants, the pyramid-temple of Structure 5N2 was not conceived as a monument or focal point for a larger population group.
As for the edifice's ornamentation on its north façade, it certainly seems somewhat out of place when compared with that of most of the large structures in the region that feature a decoration of stone mosaics. But this has mainly to do with its poor crafting qualities, not with the iconographic content (Nondédéo and Patrois Reference Nondédéo and Patrois2007, Reference Nondédéo, Patrois, Monod-Becquelin, Breton and Ruz2010). An iconography that associates water elements and agricultural production (possibly cacao trees) with reptilian (Earth Monster) profile masks is regionally well-known (see Patrois Reference Patrois2013).
Lastly, the reconstructed history of Structure 5N2 construction and occupation phases and the search for its social background open perspectives in accord with the broad image of the local society that emerges from the work carried out within the context of the project. Among a dispersed population, families escaping a modest origin and portraying themselves as “nouveaux riches” dominated the social hierarchy, or attempted to do so by setting themselves up as a sort of aristocracy with generally no long-lasting success. They made a point of displaying their power architecturally in grand houses easily visible to outsiders from afar. As has been argued above, in order to rise to a rank above their neighbors by undertaking the transformation of their original residence into one vast palace, the occupants of the old house g-h may have “absorbed” the inhabitants of Structure 5N4, and a little later those of Structure 5N9—two households with apparently only a slightly lower initial status. The subordinated populations under the rule of the Structure 5N2 leading family seem to be too restricted in number, however, to permit the achievement of the building program; this would explain the construction sequence, stage by stage, and the rather long-lasting edification process. Another puzzling issue that we have not been able to solve so far, is the identification of the economic resources used by Structure 5N2 leaders to attract, control, and/or absorb neighbouring families, as the material culture shows a very limited access to valuable goods or exogenous raw materials, a feature observed for both the Late and the Terminal Classic period Rio Bec society. We must therefore assume at least a minimal form of cooperation among the social houses, in particular between Structure 5N2 families and the Unit Structure 5N15 households as they may have shared the same agrarian “domain.” Thus the actual authority in the local society of what appears architecturally to be noble residences may have been definitely much more limited than what the buildings and their decoration sought to show.
RESUMEN
La Estructura 5N2 de Río Bec, anteriormente conocida como “Grupo A” o “Edificio A”, es el primer edificio de toda la región en haber sido descubierto (por Sapper a finales del siglo XIX) y publicado (en particular por Périgny a principios del siglo XX). Se trata también de la construcción con torres más voluminosa en el sector específico de Río Bec. Sin embargo, su elección para ser minuciosamente excavada, consolidada y restaurada por el Proyecto Río Bec entre los años 2004–2009, no se debió a su papel en la historia de la investigación mayista, ni tampoco a sus dimensiones. En realidad, al estudiar la Estructura 5N2 se buscaba inicialmente conocer su forma exacta, sus funciones, y las fases requeridas para la construcción y ocupación de una estructura de este género. Desde hace tiempo ya se ha considerado que edificios “palaciegos” con torres en la región, tanto por su monumentalidad como por su impacto visual, podrían haber desempeñado un papel importante en la estructuración sociopolítica local. Sin embargo, en ausencia de una excavación con un registro preciso en uno de ellos, el papel atribuido a este tipo de construcción seguía siendo especulativo.
El análisis de las características morfológicas de la Estructura 5N2 demostró, en primer lugar, que dicho edificio constaba de dos partes opuestas: una mitad residencial al sur, con cuatro pares de habitaciones en dos crujías. Estas se encontraban organizadas en torno a dos patios entre los cuales se eleva, de modo inusual, una pirámide que coronaba antaño un templo. A raíz de la ubicación de este conjunto ritual y de la falta de espacio para congregar a gente frente a él, es ineludible reconocer que el templo-pirámide de la Estructura 5N2 debió de haber sido de uso estrictamente privado. Al norte de la Estructura 5N2, por otra parte, la segunda mitad de la estructura enmarcada por las dos torres, contiene cuatro cuartos y tiene un aspecto netamente público. El estudio de la historia de la estructura mediante un programa de sondeos estratigráficos, reveló también que se habrían dado dos episodios principales en la edificación en Estructura 5N2. En un primer momento (hacia 700–720 d.C.), existieron sólo un par de habitaciones (g-h). Es alrededor de 830–850 d.C. cuando su función se concibió de manera global y se empezó a realizar una transformación radical que convirtió la modesta estructura original en un “palacio” de doce habitaciones. Este segundo episodio constructivo contó con una serie de sub-etapas; sin embargo, la estructura no fue terminada en su lado norte cuando se abandonó (hacia 950 d.C.). Tal observación demuestra tanto lo lento de la construcción como la ocurrencia de cambios en los planes de la edificación, un rasgo que se repite en otras partes de Río Bec. Finalmente, el estudió de la Estructura 5N2 de un modo diacrónico permitió plantear preguntas acerca de las dimensiones sociales y económicas del surgimiento de un edificio a priori considerado representativo de la arquitectura Río Bec. Esto fue posible gracias al conocimiento adquirido del entorno de la estructura y en especial, de las transformaciones en los patrones de asentamiento. Parece ser que para poder crecer, la Estructura 5N2 absorbió a algunas de las familias que originalmente vivían cerca. La familia dominante que emprendió la dramática ampliación del edificio probablemente trató pues de imponerse como una casa noble. Si bien esta familia pudo haber logrado reforzar sus pretensiones por medio de la arquitectura y de su decoración, parece ser que nunca alcanzó a imponer su autoridad en el ámbito social y político.
ACKNOWLEDGMENTS
Since 2002, the Río Bec project has received continuous support from the Instituto Nacional de Antropología e Historia, and from several other Mexican and French institutions, among which we would like to thank particularly the State of Campeche, the INAH-Campeche Centre, the French Ministère des Affaires Étrangères et Européennes, the Centre d'Études Mexicaines et Centraméricaines (México), the Foundation Entreprises Françaises au Mexique (EFM) and the CIMESA company (Solétanche-Bachy). We also thank the reviewers, Alejandro Patiño (University of Calgary) and Michael Ilett (University of Paris 1, Panthéon-Sorbonne) who greatly helped improve this paper, as well as Sylvie Éliès, who completed some of the figures.




